Aller au contenu principal
Retour à la recherche

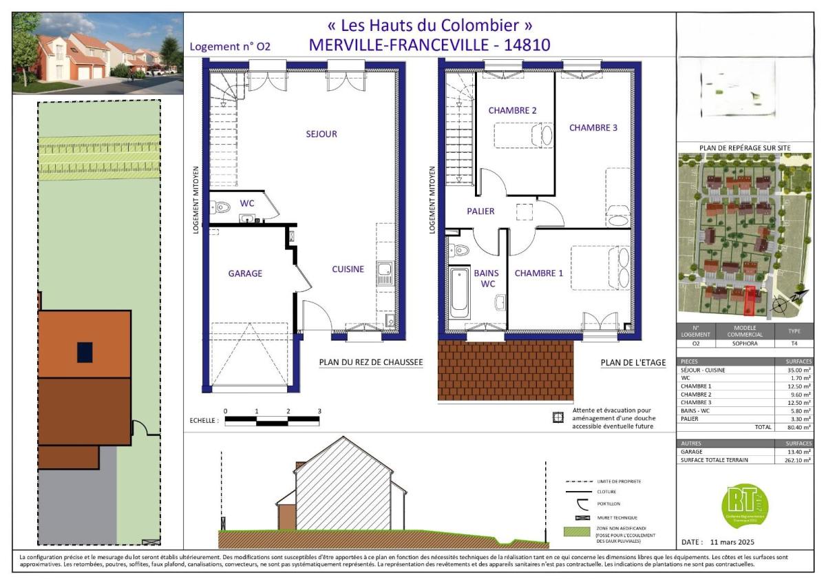
Maison 4 pièces, 80 m2

Réf. : 14096-946
Dernière mise à jour de l’annonce : 09/10/2025

Vente

262 800 € (honoraires de négociation inclus)
Honoraires à la charge du vendeur
14810 Merville-Franceville-Plage
Programme neuf, LES HAUTS DU COLOMBIER, plusieurs types de maison disponibles de 80m² à 88m² avec 3 chambres, jardin et garage. Livraison prévisionnelle : 2ème trimestre 2026. Frais de notaires réduits Coordonnées négociateur : Jean-Charles JOUE, Mobile : 06.82.05.56.24, Email : negociation@dpj.notaires.fr;

Général

Nombre de pièces : 4
Nombre de chambres : 3
Surface :  80 m2
Superficie : 262 m2
Exposition :  Est

Bilan énergétique

Date du diagnostic :  26-06-2025
DPE
Logement économe
3 kwh/m²/an
Logement énergivore
GES
Faible émission de GES
3 kg CO₂/m²/an
Forte émission de GES

Depuis le 1er juillet 2021, c’est la plus mauvaise des deux performances (DPE ou GES) qui est retenue au final.

Équipements

Nombre de salles de bain : 1

Conditions de vente

Prix HNI :  262 800 €
(honoraires de négociation inclus)
Type d'honoraires :  À la charge du vendeur

Contact

Négociateur : Jean-Charles JOUÉ
Téléphone : 06 82 05 56 24
Adresse : 66 Boulevard Yves Guillou
Code postal :  14000
Ville :  CAEN